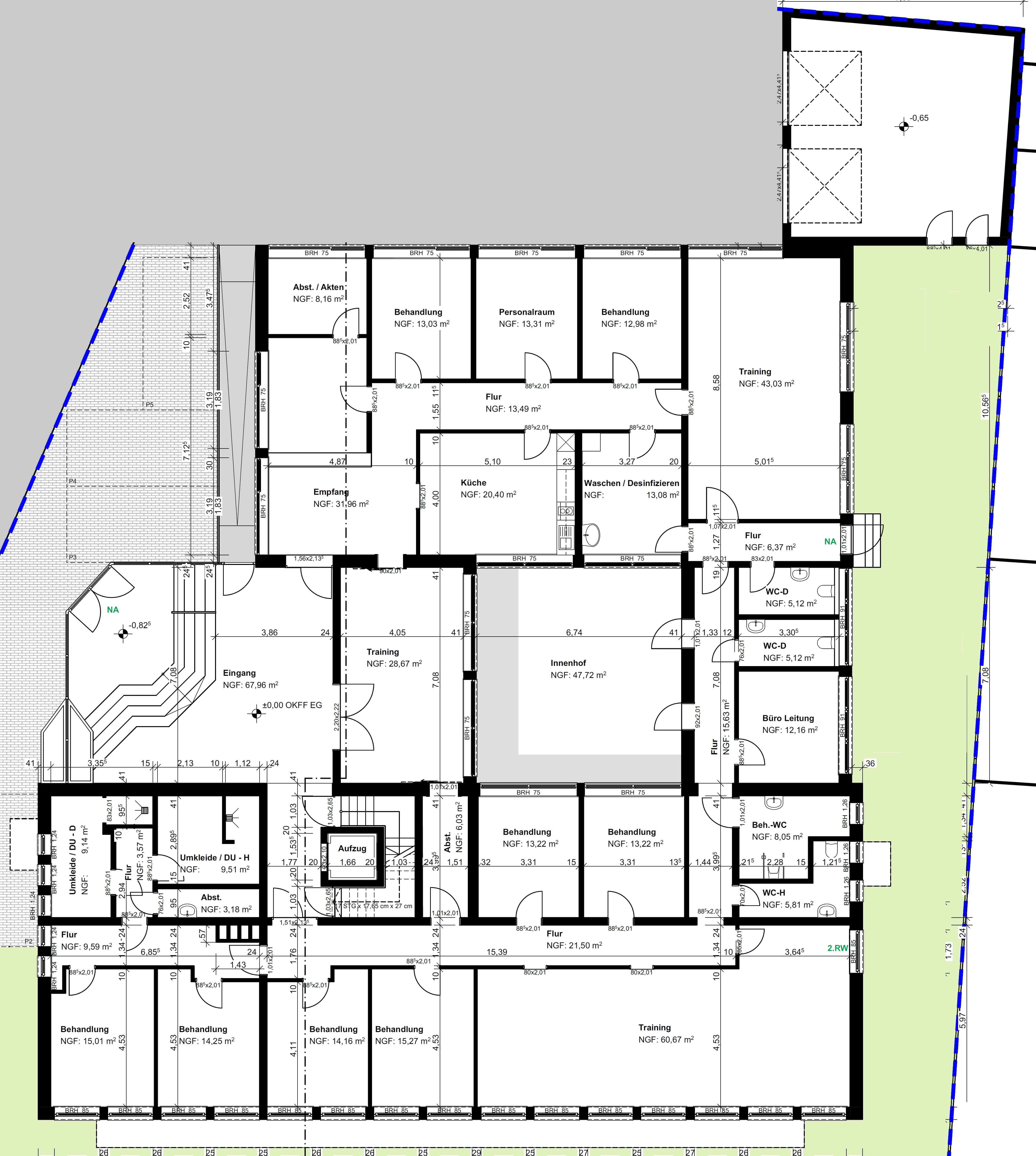
Büro - Praxis - Kanzlei Standort in Gütersloh Dieser klassiche Gewerbestandort könnte der neue Heimathafen Ihres Unternehmens werden. Ob Arztpraxis, Rechtsanwalts- und/oder Steuerberaterkanzlei, IT-Unternehmen oder oder oder. Diese Liegenschaft bietet Ihnen alle Möglichkeiten. Das Objekt wird zur Zeit saniert, Sie haben somit noch die Möglichkeit Ihre individuellen Wünsche mit einzubringen. Zur Verfügung stehen: Erdgeschoss mit 473 m² zzgl. Kellerflächen, 1. OG mit einer Nutzfläche von 233 m² zzgl. Keller mit ca. 82 m², 2. OG mit 220 m² zzgl. Keller ca. 20 m². Zu erreichen sind alle Flächen barrierefrei über einem Personenaufzug oder das Treppenhaus. Parkplätze können optional mit angemietet werden. Haben wir Sie neugierig gemacht? Dann rufen Sie uns an.
GENO Immobilien GmbH
Friedrich-Ebert-Str. 60
33330 Gütersloh
Wilhelmstraße 11
33602 Bielefeld
Tel.: 0521 120 130-0
Fax: 0521 120 130-10
E-Mail: info@geno-24.de