Exklusives Penthouse in zentraler Lage von Gütersloh

Eckdaten zur Immobilie

Objekt-ID
25157
Objektart
Wohnung
Lage
33330 Gütersloh
Wohnfläche
188.99 qm
Kaltmiete
1.500,00 €
Warmmiete
2.300,00 €
Nebenkosten
700,00 €
Baujahr
2013
Zustand
Neuwertig

Weitere Angaben

Küche
Ja
Terrassen
2
Zimmer
5
Heizungsart
Zentralheizung
Energieträger
Wärmepumpe
Energieausweis
Nein

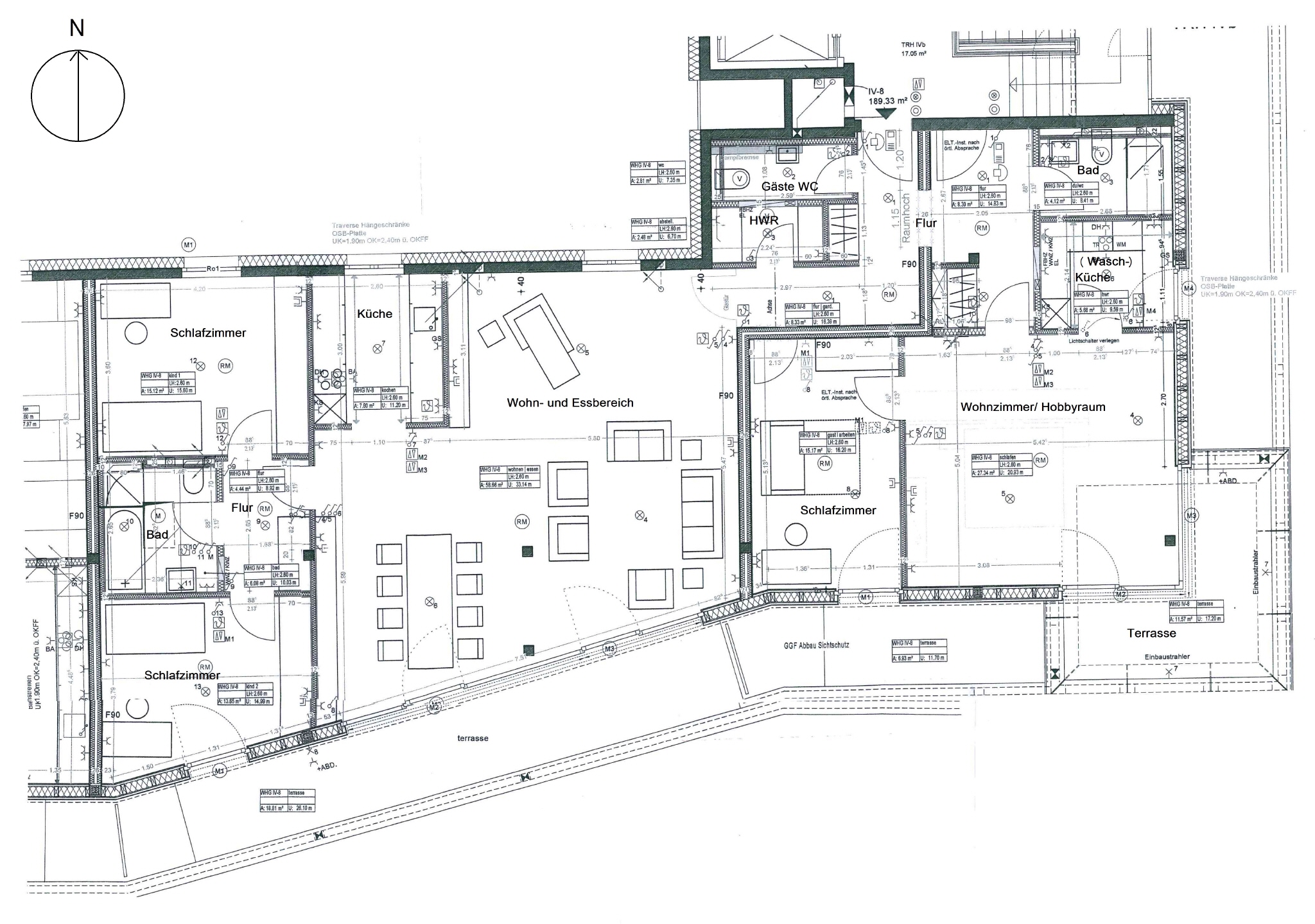
Beschreibung

Inmitten der Gütersloher Innenstadt, in einem Wohn- und Ärztehaus mit direkter Anbindung an den öffentlichen Nahverkehr, befindet sich dieses exklusive Penthouse mit einer großzügigen Wohnfläche von ca. 189 m². Dank der zentralen Lage profitieren Sie von kurzen Wegen zu Einkaufsmöglichkeiten, Restaurants, Ärzten und kulturellen Angeboten. Ursprünglich als zwei separate Wohnungen angelegt, wurde die Etage zu einer modernen Einheit zusammengeführt. Der offene Grundriss bietet vielfältige Nutzungsmöglichkeiten – ideal für Familien, Berufstätige oder Paare, die Wohnen und Arbeiten harmonisch verbinden möchten. Das Herzstück der Wohnung bildet der geräumige Wohnbereich mit einer durchgehenden Fensterfront. Von hier aus gelangen Sie direkt auf die große Dachterrasse, die sich über die gesamte Länge erstreckt. Die halboffene Küche kann von den Vormietern übernommen werden. Drei Schlafzimmer mit Teppichboden, zwei Bäder sowie ein separates Gäste-WC sorgen für zusätzlichen Komfort. Ein weiterer Raum mit Zugang zu einer zweiten Dachterrasse eignet sich optimal als Arbeitszimmer, Atelier oder Hobbyraum. Praktische Annehmlichkeiten wie eine separate Waschküche, zwei Kellerräume und zwei Tiefgaragenstellplätze (je 50 € monatlich) runden das Angebot ab.

Kontakt

Biroula Danho

Tel. 05241 23488-15

biroula.danho@geno-24.de

Impressum

Bild Biroula Danho
Anschrift

GENO Immobilien GmbH
Friedrich-Ebert-Str. 60
33330 Gütersloh


Bielefeld

Wilhelmstraße 11
33602 Bielefeld

Tel.: 0521 120 130-0
Fax: 0521 120 130-10
E-Mail: info@geno-24.de

Kontakt

Tel.: 05241 23488-0
Fax: 05241 23488-10
E-Mail: info@geno-24.de

Logo GENO Immobilien GmbH
In Kundenkartei eintragen