Lichtdurchflutete 3-ZKB-Wohnung mit Loggia in Gütersloh-Kattenstroth

Eckdaten zur Immobilie

Objekt-ID
25126
Objektart
Wohnung
Lage
33332 Gütersloh
Wohnfläche
76.00 qm
Kaltmiete
670,00 €
Warmmiete
860,00 €
Nebenkosten
190,00 €
Baujahr
1985

Weitere Angaben

Zimmer
3
Heizungsart
Etagenheizung
Energieträger
Gas
Energieausweis
Ja
Typ
Verbrauchsauweis
Kennwert
94,9
Energieeffizienzklasse
C

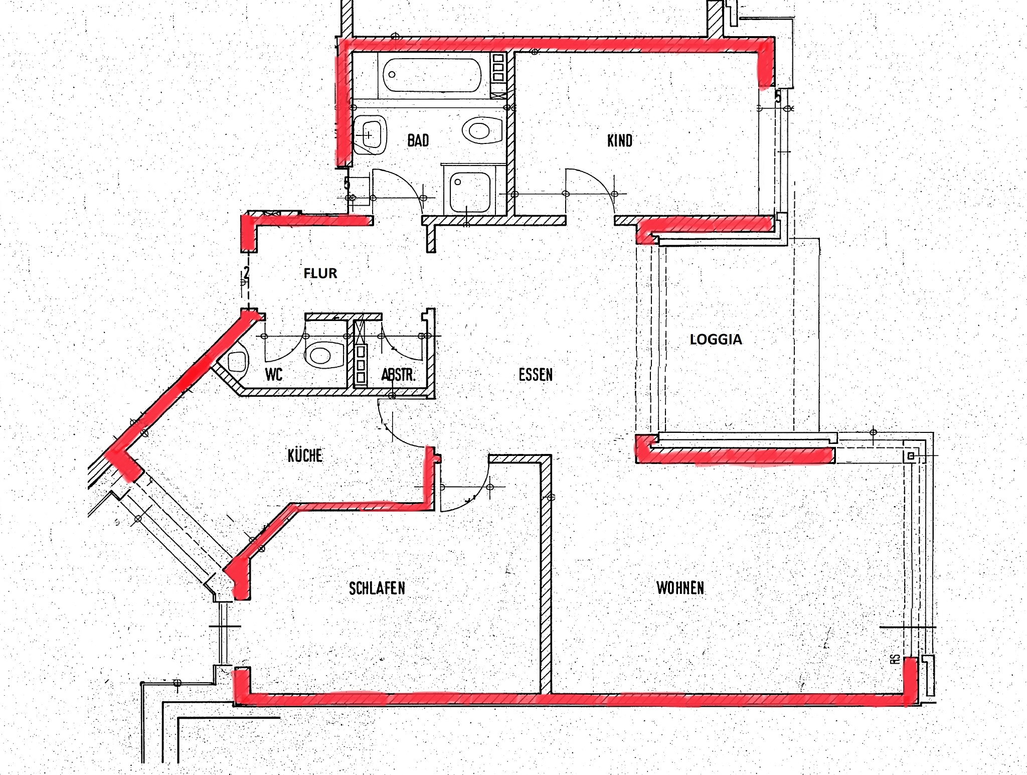
Beschreibung

Diese einladende und lichtdurchflutete 3-Zimmer-Wohnung liegt in einem gepflegten 8-Parteienhaus in Gütersloh-Kattenstroth und bietet mit ca. 76 m² Wohnfläche ein modernes Zuhause. Die im 1. Obergeschoss gelegene Wohnung besticht durch ihre großzügigen Fensterflächen. Vom Flur aus gelangt man in das 2025 vollständig modernisierte Badezimmer sowie das praktische Gäste-WC. Das Esszimmer bildet den zentralen Mittelpunkt der Wohnung und bietet Zugang zur separaten Küche, dem großzügigen Wohnzimmer und den übrigen Räumen. Die westlich ausgerichtete Loggia ist ausgestattet mit einer Markise. Neben dem geräumigen Schlafzimmer steht ein weiteres vielseitig nutzbares Zimmer zur Verfügung. Ein praktischer Abstellraum innerhalb der Wohnung bietet neben dem eigenen Kellerraum, zusätzlichen Stauraum. Ein Tiefgaragenstellplatz kann für monatlich 40,00 € mit angemietet werden. Kontaktieren Sie uns gerne zur Vereinbarung eines Besichtigungstermins!

Kontakt

Lena Homann

Tel. 05241 23488-19

lena.homann@geno-24.de

Impressum

Bild Lena Homann
Anschrift

GENO Immobilien GmbH
Friedrich-Ebert-Str. 60
33330 Gütersloh


Bielefeld

Wilhelmstraße 11
33602 Bielefeld

Tel.: 0521 120 130-0
Fax: 0521 120 130-10
E-Mail: info@geno-24.de

Kontakt

Tel.: 05241 23488-0
Fax: 05241 23488-10
E-Mail: info@geno-24.de

Logo GENO Immobilien GmbH
In Kundenkartei eintragen